rekonstrukce
Rodinný dům Kohoutovice

ÚDAJE O PROJEKTU

Klient: manželé Konrádovi
Projekt: 2025
Realizace: předpoklad 2025-2026
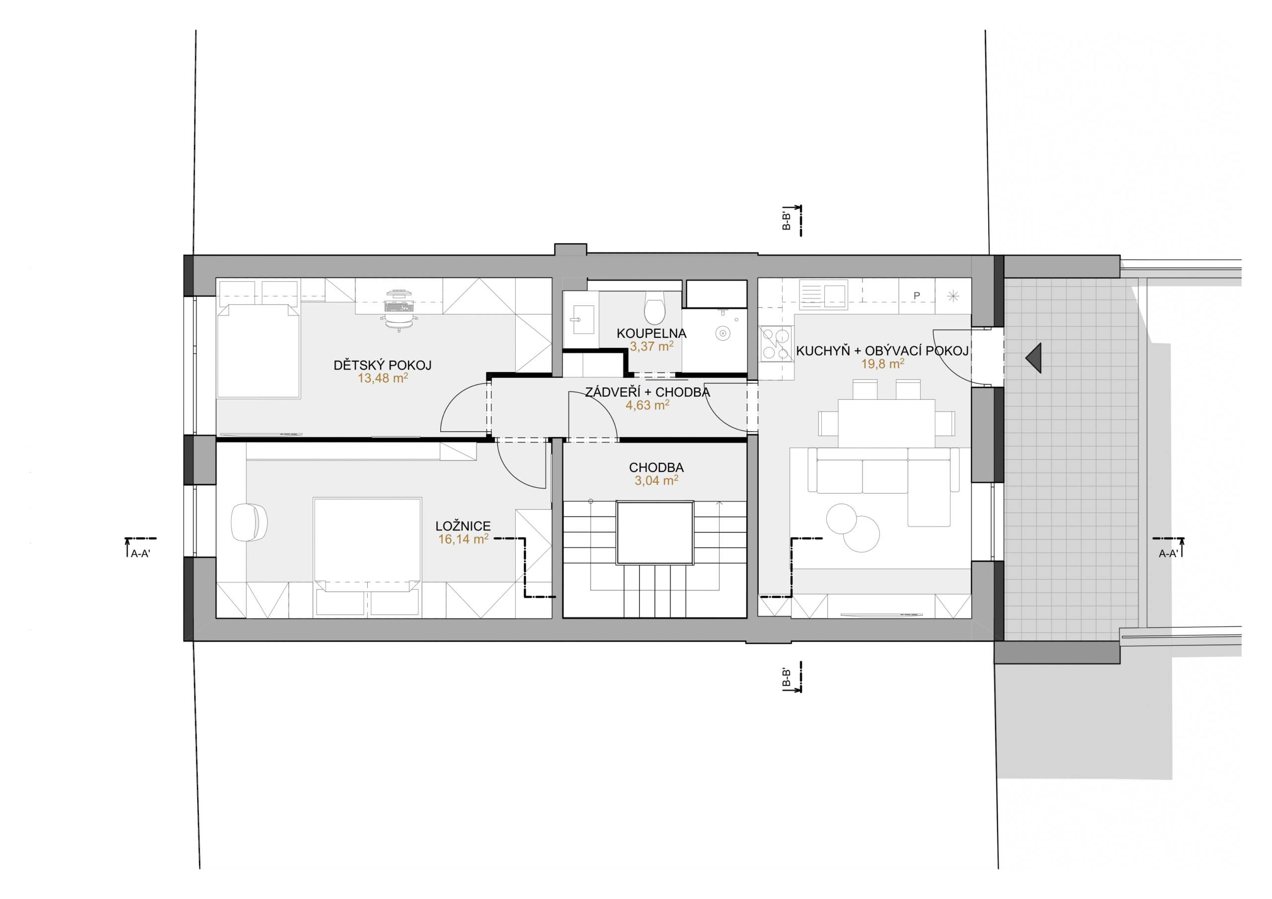
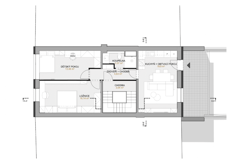
Zastavěná plocha: 196 m²

Rodinný dům v Kohoutovicích, součást řadové zástavby, prochází rekonstrukcí s cílem vytvořit tři samostatné bytové jednotky. Každé podlaží nabídne vlastní plnohodnotné bydlení – od garsonky v 1. PP až po větší byty s obývacím pokojem, kuchyní, ložnicí a dětským pokojem ve vyšších patrech. Fasáda bude nově řešena kombinací bílé omítky a cihelného obkladu, okna v antracitovém odstínu zajistí moderní vzhled i více denního světla. Návrh tak spojuje funkční dispoziční řešení s kvalitními materiály a citlivě zapadá do charakteru okolní zástavby.