Bytový dům v Rožnově pod Radhoštěm je přestavbou bývalého internátu na moderní bydlení. Projekt zahrnuje nejen úpravu samotného objektu, ale také okolí – nové parkoviště, odpočinkovou zahradu a prostor pro odpad. Stavba dostane novou fasádu v bílo-šedých odstínech, rozšířené lodžie s ocelovou konstrukcí a velká francouzská okna, která zajistí více denního světla. Součástí návrhu je také nové vstupní řešení s přístřeškem, které podtrhne moderní charakter domu.
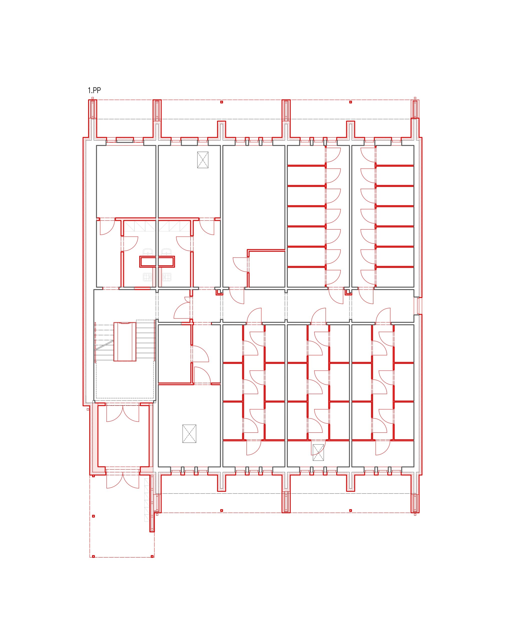
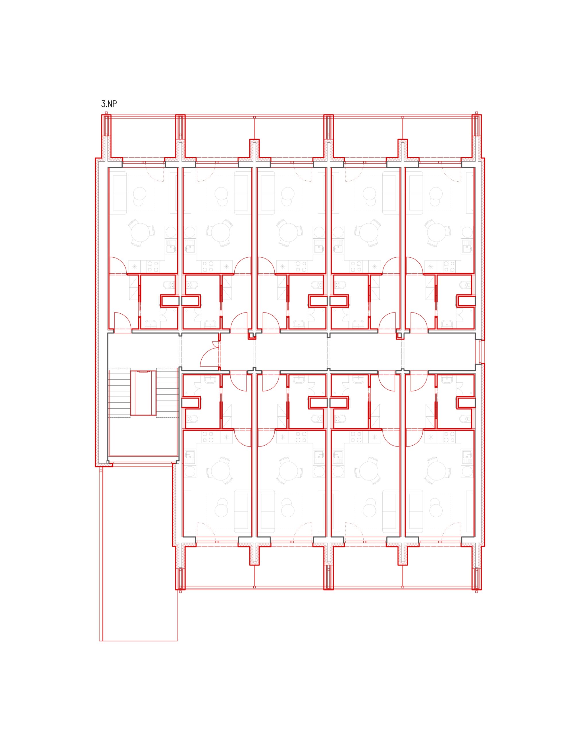
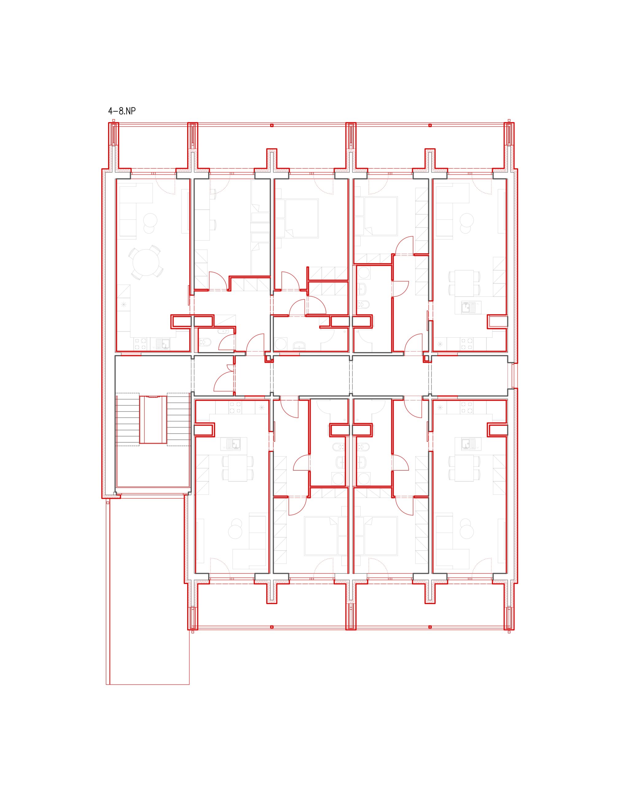
Dispoziční řešení je navrženo tak, aby maximálně využilo plochu pozemku a zároveň vytvořilo příjemné prostředí pro budoucí obyvatele. V přízemí se nachází zázemí domu a technických prostor, ve vyšších podlažích pak bytové jednotky s dostatečným přísunem denního světla. Vybrané byty jsou doplněny o lodžie, které zvyšují kvalitu bydlení a umožňují propojení s exteriérem.
Fasáda domu pracuje s kombinací světlých omítek a doplňkových materiálů, které dodávají stavbě moderní a čistý vzhled. Celý návrh respektuje charakter okolní zástavby a přirozeně na ni navazuje, přičemž přináší současný architektonický výraz a odpovídající standardy městského bydlení.








